OFFICE AND CANTEEN UNITS
In addition to our Towable Welfare Fleet, we offer a Range of Static Site Accommodation tailored for your needs.
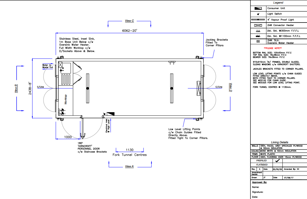
Our Canteen Units are of a high standard and provides a clean, hygienic, & comfortable space for your Team. The Canteen facilities include a Sink with single drainer, Cold Water Tap, Worktop Space, 2 kw instant water heater & a 2 kw convector heater. The Units require a 32 amp connection & foul/water connection. The standard furniture package includes 2 x Mess Tables and 12 x Chairs. In addition, the high security doors & lockable shutters provide extra peace of mind.
Technical Spec:
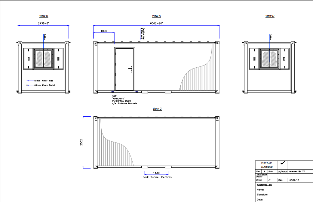
1 x Multi Point Locking Personnel Door
2 x 915mmx915mm Aluminium double glazed sliding window & shutters
1 x Consumer Unit
2 x Standard fluorescent Light & Switch
2 x 13 amp twin switched double socket
1 x 2kw convector heater
Sink, Single Drainer, Cold Tap, Cupboard, Worktop, 2kw instant w/heater, double socket above & below worktop.
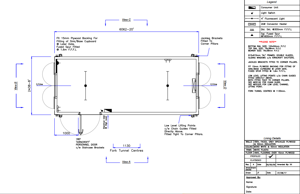
Our Open Plan Office Units provide an up to date & modern working environment for your Administrative & Site Management needs whilst maintaining the high security Anti Vandal standards. They are spacious & comfortable, and come with our standard furniture package of 1 x Swivel Chair, 1 x Soft Chair, 1 x Office Table, 1 x 3 drawer Unit, 1 x Bookcase, 1 x 4 drawer Filing Cabinet, Whiteboard/Pinboard. The Office units require a 32 amp connection.
Technical Spec:
1 x Multi Point Locking Personnel Door
2 x 915mmx915mm Aluminium double glazed sliding window & shutters
1 x Consumer Unit
2 x Vapour proof fluorescent lights & switch
1 x 13 amp twin switched double socket
1 x 2kw convector heater
In addition to the Single Units, we can also offer 50/50 or 70/30 split combinations depending on your specific requirements, such as Office/Canteen, Canteen/Store & Canteen/Drying Rooms. Or for multiple units, we can provide Double Stacking if required, which will include Staircases & Landings to suit your needs.











